BRU GAV - Emprendimiento de pozo

direccion Av. Costanera 3932, Costa Azul

volver Volver al listado
left
right
left
right

Venta

USD 54.000

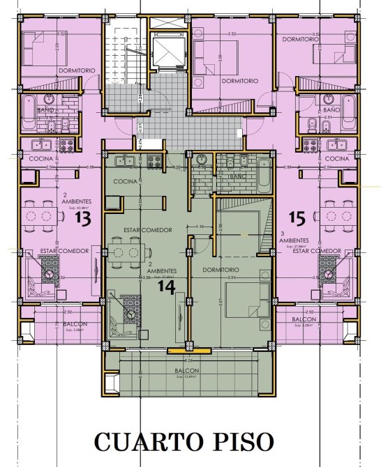
Codigo Código de propiedad: Bru Gav 4 amb
  • Tipo de propiedad Semipiso
  • ambientes 4 Ambientes
  • toilet 2 baños
  • cama 3 Dormitorios
  • Disposicion Disposicion Frente
  • Orientacion Orientación Este
  • Anticipo y cuotas Anticipo y cuotas
  • Superficie cubierta Sup. cubierta 105m2
  • Superficie total Sup. total 153m2
  • Antiguedad Antigüedad En construcción
  • Estado Estado Excelente

Acerca de la propiedad

ENTREGA DICIEMBRE 2027
EL VALOR CONSIGNADO CORRESPONDE AL ANTICIPO POR UN SEMIPISO EN 5TO PISO con QUINCHO.-
Consulte el plan de financiación para estas y otras unidades.

-Exclusivos departamentos –
Amplios departamentos de 1, 2, 3 y 4 ambientes, con cocheras opcionales.
PRIVILEGIADA UBICACIÓN – TODAS LAS UNIDADES FRENTE AL MAR
Sobre Av. Costanera 3932 entre Alberdi y Drago, en Costa Azul.-
 
-Servicios-
Todos los servicios disponibles en la zona, Agua de red, Luz Eléctrica, Cloacas e instalación para  TV.
 
-Detalles Constructivos-
Sistema constructivo por medio de de vigas de fundación, columnas y vigas perimetrales todo en Hormigón Armado. Mampostería de ladrillos huecos .paredes interiores con revestimiento plástico de primera calidad y fina terminación exteriores con aislamiento hidrófugo y revestimiento plástico de alta resistencia.
 
- Revestimientos –
Paredes de baño y cocina revestido con material cerámico de primera calidad.
Pisos de baño cocina dormitorios, palier, hall de entrada, revestidos, con material cerámico de primera calidad.
 
- Equipamiento de cocina  -
Cocina y termo tanque eléctrico de recuperación rápida.
Mesada de granito, bacha de acero inoxidable bajo mesada de MDF 
 
- Grifería y accesorios de baño –
Cocina griferia mono comando. Baño griferia con cuadro de ducha y bidet con mezcladora línea FV o similar. Artefactos sanitarios blancos de loza Ferrum o similar.
 
- Carpintería –
Puerta de acceso a unidades y puertas interiores  de madera esmaltada aberturas exteriores de aluminio línea Modena de Aluar o similar con vidrio Flot de 4 mm.
 
- Instalación sanitaria –
Alimentación de agua caliente y fría mediante cañerías de termo fusión Aquasistem o similar. Tuberías de desagües Awaduct o similar, todas las cañerías aprobadas y normalizadas por ABSA (red de agua). Obras sanitarias por Cesop.
 
- Instalación eléctrica-
Cada  unidad estará equipada con un tablero con disyuntor y llaves térmicas individuales para cada circuito de alumbrado y toma corrientes. Todos los componentes de la  instalación eléctrica  se ajustaran a reglamentaciones vigentes y a normas IRAM.
 
-Ascensor –
Moderno ascensor de última generación con cabina de acero  inoxidable.-
 
-REFERENCIAS -
San Juan 2875 (6 pisos con cocheras) - San Juan 3056 (6 pisos con cocheras)  - J.V. González 123 (7 pisos) –  San Juan esq. Mensajerías (PB y 2 pisos).- Bruno I (6 pisos con cocheras) - Bruno II (7 pisos con cocheras) - Bruno III (6 pisos con cocheras) – Bruno IV (6 pisos) - GAV I (3 cuerpos/18 deptos) GAV II (5 pisos) – GAV III (12 departamentos)
 
 
AVISO LEGAL: 1) Las descripciones arquitectónicas y funcionales, fotos, renders, memorias descriptivas, medidas del inmueble, precios, valores de expensas, impuestos y servicios y fechas de entrega de los emprendimientos son aproximados, meramente orientativos y no vinculantes. 2) Los datos fueron proporcionados por el propietario o por el desarrollador y pueden no estar actualizados a la hora de la visualización de este aviso por lo que pueden arrojar inexactitudes y discordancias respecto de los datos exactos, los cuales surgen de las facturas, títulos y planos legales del inmueble. 3) Recomendamos y sugerimos al usuario y/o al interesado realizar las verificaciones respectivas previamente a la realización de cualquier operación, requiriendo -a tal fin- por sí o a través de profesionales las copias necesarias de la documentación que estimen necesario conocer con exactitud.

Comodidades

  • Patio Con patio
  • Cochera 1 cochera
  • Parrilla Con parrilla
  • Mascotas Acepta mascotas
  • Con vista al mar Con vista al mar
Ver más

Ubicación

Servicio brindado por

buscadorprop

Todos los derechos registrados:

grupotodo
whatsapp Whatsapp email Contactar telefono Llamar
Chatea con nosotros whatsapp