Casa 5 amb en centro de wilde a pasos de Las flores y Mitre

direccion Pasaje Calderón 6121, Wilde

volver Volver al listado
left
right
left
right

Venta

USD 250.000

  • Oportunidad
Codigo Código de propiedad: perrina
  • Tipo de propiedad Casas
  • ambientes +4 Ambientes
  • toilet 1 baño
  • toilet 1 toilette
  • cama 3 Dormitorios
  • cama 1 Dormitorio en suite
  • Estado Estado Muy bueno
  • Situacion Situación Habitada

Acerca de la propiedad

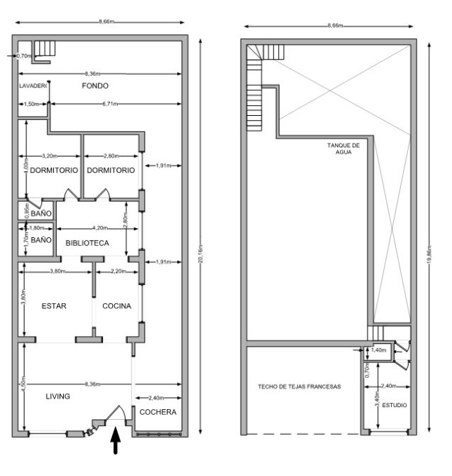
Casa en planta baja en muy buen estado. Excelente ubicacion a media cuadra de Las flores y 2 cuadras de Av. Mitre 

Living, comedor y cocina comedor integrado con amueblamientos de cocina nuevos (proximamente foto actualizada de cocina)
baño completo con hidromasaje. 
3 dormitorios (uno con baño en suite).
cochera cubierta pasante (entran dos autos si ingresa uno detras del otro)
galeria con techo corredizo.
Amplio patio con lavadero.
Acceso desde el patio a Terraza con cuarto guardacosas y habitación con baño.

* Por esta propiedad comuníquese al 1153154218 / inmobiliariasmedina@gmail.com / inmobiliariamedina@yahoo.com.ar

Comodidades

  • Patio Con patio
  • Cochera cochera
  • Parrilla Con parrilla
  • Mascotas Acepta mascotas
Ver más

Ubicación

Servicio brindado por

buscadorprop

Todos los derechos registrados:

grupotodo
whatsapp Whatsapp email Contactar telefono Llamar
Chatea con nosotros whatsapp